381 Independence Avenue
Suite 103A
Mechanicsburg, PA 17055
Cumberland County, Upper Allen Township
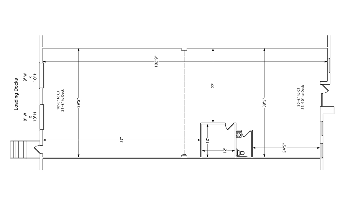
One suite available — an open shell ready to be customized for a variety of end users. The space offers heat and a/c, excellent clear height (16'5" to the HVAC equipment), ample power, and a small office with a private restroom. Two dock doors provide easy loading access. Conveniently located just off Route 15 and only minutes from the PA Turnpike, this location offers good accessibility for your business.
| Square Feet Available | 4,126 SF |
| Lot Size | 5.69 AC |
| Date Available | Immediately |
| Price | $9.45 / SF |
Zoning
Industrial (Ind) which permits academic clinical research centers, contractors’ offices, shops and yards, manufacturing (not limited), medical marijuana transport vehicle office, professional offices, retail businesses, storage (mini facilities), trucking terminals, wholesaling, storage and warehouse and more.
Building Information
| SF Available | 4,126 |
| Total SF in Building | 49,311 |
| Construction | Split-face masonry |
| Year Constructed | 2008 |
| Elevator | None |
| Number of Floors | One |
| Sprinklers | Yes; wet system |
| HVAC | Electric air and heat |
| Ceiling Type | Office area: 2x4 acoustic tile | Warehouse: exposed |
| Ceiling Height | 16'5" clear (to HVAC equipment) and 22' to deck |
| Floor Type | Concrete |
| Business ID Sign | Building signage |
| Basement | None |
| Restroom | One private (in-suite) |
| Electrical Capacity | 225 Amp; 120/208 volt, 3-phase, 4-wire |
| Roof | 45 mil white EPDM |
| Walls | Painted drywall and block walls |
| Lighting | T-8 fluorescent |
Leasing Information
| Price Per SF | $9.45 |
| Price Notes Leasing | NNN lease |
| Monthly | $3,249.23 |
| Annually | $38,990.70 |
| Rentable Useable | Rentable |
| Real Estate Taxes | Paid by Tenant through CAM |
| Operating Expenses | Paid by Tenant through CAM |
| Insurance | Paid by Tenant through CAM |
| Finish Allowance | Negotiable |
| Lease Term | 3+ years |
| Options | Negotiable |
| Escalation | 3% annual increases on the base rent |
| Possession | At lease commencement |
| Building Hours | Unlimited |
| Security Deposit | Amount equal to first months' rent |
| CAM | Paid by Tenant; estimated to be $3.05/SF |
Utilities And Services
(T= By Tenant, L= By Landlord)| Heat | T | Trash Removal | T |
| Insurance | T | Air Conditioning | T |
| HVAC Repairs | T | Interior Repairs | T |
| Water and Sewer | T | Taxes | T |
| Electric | T | Janitorial | T |
| Structural Repairs | L | Parking Lot Maintenance | T |
| Plumbing Repairs | T | Roof Repairs | L |
Land Information
| Acres | 5.69 AC |
| Land SF | 247,856 |
| Fencing | None |
| Parking | 70+/- lined spaces for cars. Some truck parking in the rear of the building. |
| Topography | Generally level |
| Historic District | No |
| Flood Zone | No |
| Tax Parcel Number | 42-10-0646-056 |
Industrial Information
| Office Size | 144+/- SF (12'x12') |
| Dock Doors | Two: 10' x 8' |
| Drive-in Doors | None |
Utilities
| Water | Public |
| Sewer | Public |
| Gas | None |
Location
Photos (6)
Plans (1)
Information concerning this offering is from sources deemed reliable, but no warranty is made as to the accuracy thereof, and it is submitted subject to errors, omissions, change of price or other conditions, prior sale or lease, or withdrawal without notice. All sizes approximate.
NAI CIR | 1015 Mumma Road, Lemoyne, PA 17043 | PA License #RB024320A