fbpx
CLOSE X
• • • • • • • SEARCH
SHARE THIS LISTING

5095 Ritter Road
Mechanicsburg, PA 17055

Cumberland County, Upper Allen Township

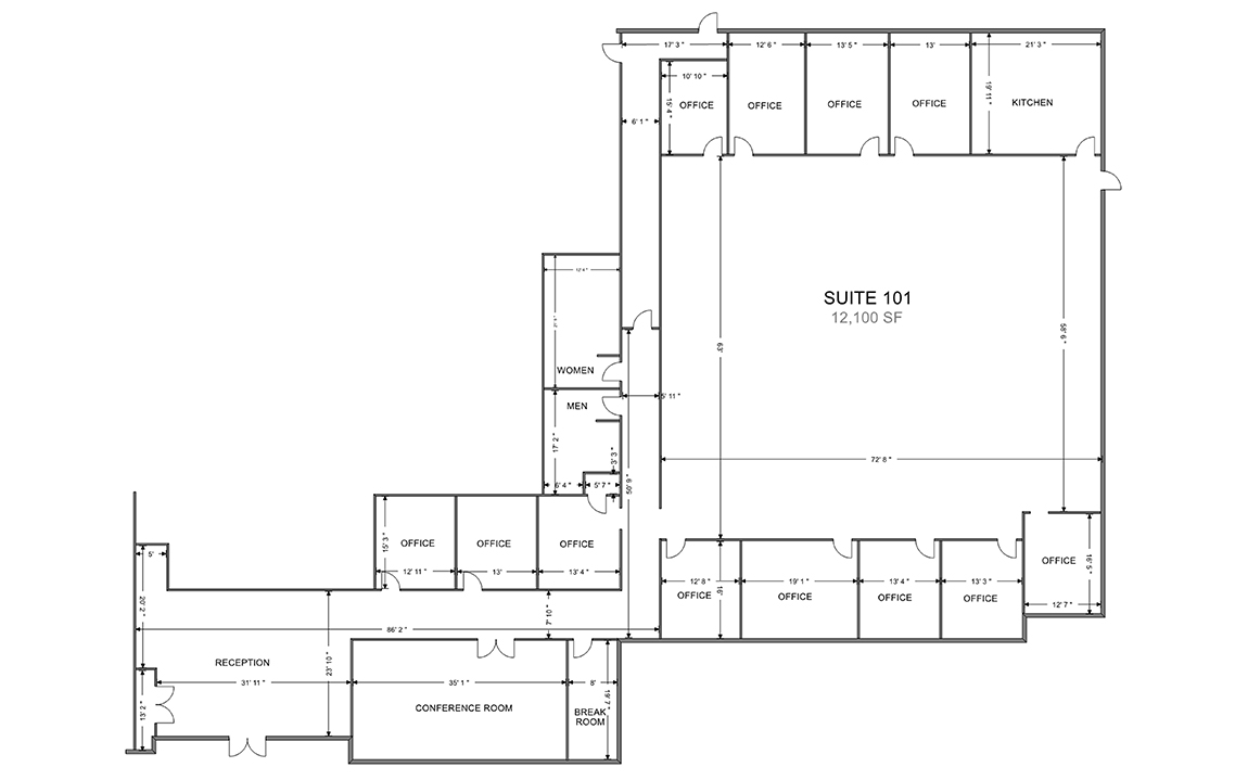
Two suites are available for lease at 5059 Ritter Road in Mechanicsburg. Suite 101 offers a professional office layout with multiple private offices and an open area ideal for cubicles or call-center operations. Suite 106 features a front office area paired with flex/warehouse space in the rear (including high ceilings and two dock doors), providing an excellent blend of workspace and storage or light-industrial functionality. Both suites offer adaptable layouts in a well-located, well-maintained business setting.

Square Feet Available 20,450 SF
Lot Size 9.47 AC
Date Available Immediately
Price $9.50 / SF

Zoning

Professional Office (PO) zone which permits business and office equipment sales and service, business services, manufacturing (see code for entire list), medical labs and clinics, warehousing and storage, not greater than 25,000 square feet of gross floor area and more.

Building Information

SF Available 20,450
Min Contiguous SF 8,350
Max Contiguous SF 12,100
Additional information Two suites available:
• Suite 101 (12,100 SF)
Office suite with private offices and large open area.
• Suite 106 (8,350 SF)
Office/flex space which could be configured multiple ways.
Total SF in Building 79,193
Construction Brick
Year Constructed 1997
Renovation Year 2020
Elevator None
Number of Floors One
Sprinklers Yes; wet system
HVAC Gas heat and electric A/C
Ceiling Type Suite 101: 2x2 acoustic tiles | Suite 106: 2x4 2nd look acoustic tiles in the office areas and exposed in the warehouse area
Ceiling Height Suite 101: 9'10" | Suite 106: 9"10" in office areas and 12' to HVAC equipment in the warehouse area (15'9" to the deck)
Floor Type Suite 101: tile and carpet | Suite 106: concrete - ready for your selected flooring
Business ID Sign Monument and suite signage available
Basement None
Restroom Two per suite (one men's and one women's)
Electrical Capacity 800 Amp | 250 volts
Roof Flat rubber
Walls Suite 101: painted drywall | Suite 106: painted drywall
Lighting Suite 101: fluorescent | Suite 106: LED

Leasing Information

Price Per SF $9.50
Price Notes Leasing Suite 101: $10.25/SF | Suite 106: $9.50/SF
Monthly Suite 101: $10,335.42 | Suite 106: $6,610.42
Annually Suite 101: $124,025.00 | Suite 106: $79,325.00
Rentable Useable Rentable
Real Estate Taxes Included in the CAM
Operating Expenses Included in the CAM
Insurance Included in the CAM
Finish Allowance Negotiable
Lease Term 3+ years
Options Negotiable
Escalation 3% annual increases on the base rent
Possession At lease commencement
Building Hours Unlimited
Security Deposit Amount equal to first months' rent
CAM CAM + Tax + Insurance = $5.45/SF

Utilities And Services

(T= By Tenant, L= By Landlord)
Heat TTrash Removal T
Insurance TAir Conditioning T
HVAC Repairs TInterior Repairs T
Water and Sewer TTaxes T
Electric TJanitorial T
Structural Repairs LParking Lot Maintenance T
Plumbing Repairs TRoof Repairs L

Land Information

Acres 9.47 AC
Land SF 412,513
Fencing None
Parking Over 510 lined spaces, in-common
Topography Generally level
Historic District No
Flood Zone No
Tax Parcel Number 42-10-0256-032

Industrial Information

Warehouse Size Suite 106: 5,295+/- SF
Office Size Suite 106: 3,055+/- SF
Dock Doors Suite 106: two dock doors (8'x8')

Utilities

Water Public
Sewer Public
Gas Yes

Location

Photos (9)

Plans (2)

Information concerning this offering is from sources deemed reliable, but no warranty is made as to the accuracy thereof, and it is submitted subject to errors, omissions, change of price or other conditions, prior sale or lease, or withdrawal without notice. All sizes approximate.
NAI CIR | 1015 Mumma Road, Lemoyne, PA 17043 | PA License #RB024320A
X
Information concerning this offering is from sources deemed reliable, but no warranty is made as to the accuracy thereof, and it is submitted subject to errors, omissions, change of price or other conditions, prior sale or lease, or withdrawal without notice.