CLOSE X
• • • • • • • SEARCH
SHARE THIS LISTING

118 S. Hershey Road
Harrisburg, PA 17112

Dauphin County, West Hanover Township

This well-maintained two-story property offers just over 1,700 square feet of flexible space, ideal for either residential living, retail or professional office use. The layout includes a second floor and a partially finished basement, providing additional functional space for storage, work areas, or expansion. Situated in a highly desirable and convenient location, the property benefits from strong visibility and accessibility, making it especially attractive for small business or professional office conversion while still retaining the comfort and character of a traditional home. If you're seeking a residence with room to grow or your business in a strategically located area, this property presents a unique and versatile opportunity.

Square Feet Available 1,708 SF
Lot Size 0.42 AC
Date Available Immediately
Price $342,000

Zoning

Commercial Mixed-Use (CMU) which permits motel, short-term rental, house of worship, general retail, grocery store, childcare center, drinking or eating places, medical clinic, office uses, and more.

Building Information

SF Available 1,708
Additional information There is an attached one-car garage. New water heater installed March 2025.
Construction Brick and siding
Year Constructed 1964
Elevator None
Number of Floors Two
Sprinklers None
HVAC Central A/C and heat (2022). There is also hot water boiler baseboard heat (can be used as backup if needed).
Ceiling Type Painted drywall
Ceiling Height 7'11"
Floor Type Mostly hardwood throughout; with carpet, ceramic tile and vinyl in some areas.
Business ID Sign Potentially along S. Hershey Road
Basement Yes; full basement with 360+/- SF finished
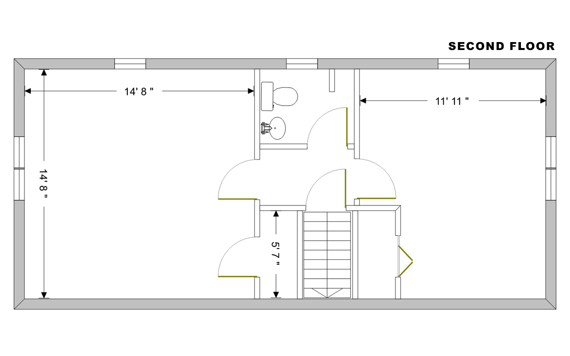
Restroom First floor: one full bathroom | Second floor: one half bathroom
Electrical Capacity 200 Amp
Roof Shingle
Walls Panel and painted drywall
Lighting Decorative

Demographics

Radii Population Households Household Income
0.25 412 181 $121,789
0.5 1,443 635 $120,835
1 4,074 1,771 $121,789
Traffic Count:

Land Information

Acres 0.42 AC
Land SF 36,075
Fencing None
Frontage Over 100' along S. Hershey Road
Parking One-car garage and driveway space available
Topography Generally level
Flood Zone No
Tax Parcel Number 68-035-032

Utilities

Water Well (new)
Sewer Septic (serviced and emptied in 2025)
Gas None

Sales Information

For Sale Yes
For Lease No
Price $342,000
Real Estate Tax Approximately $2,200 annually (2025)
Transfer Tax To be split equally between Buyer and Seller
Insurance Per Buyer's carrier
Financing Cash or conventional
Date Available Immediately
Additional Information Property also features a shed (with electric), updated windows, new water heater (2025), and Verizon FIOS is available

Location

Photos (12)

Plans (3)

Information concerning this offering is from sources deemed reliable, but no warranty is made as to the accuracy thereof, and it is submitted subject to errors, omissions, change of price or other conditions, prior sale or lease, or withdrawal without notice. All sizes approximate.
NAI CIR | 1015 Mumma Road, Lemoyne, PA 17043 | PA License #RB024320A
X
Information concerning this offering is from sources deemed reliable, but no warranty is made as to the accuracy thereof, and it is submitted subject to errors, omissions, change of price or other conditions, prior sale or lease, or withdrawal without notice.