212 Locust Street
Harrisburg, PA 17101
Dauphin County, City of Harrisburg
Elevate your business in this exceptional City location offering up to 9,228± contiguous RSF of premier office space. This Class A building features a distinctive architectural design, a variety of flexible floor plan options, and stunning views of the surrounding area. Ideal for professional users seeking high-quality finishes and a standout setting in the heart of the City. On-site professional maintenance staff and state-of-the-art security system.
| Square Feet Available | 20,823 SF |
| Lot Size | 0.50 Acres |
| Date Available | Immediately |
| Price | $19.95 / SF |
Zoning
Downtown Center which permits business services, college or universities, financial institutions, medical or dentist offices, office uses and more.
Building Information
| SF Available | 20,823 |
| Min Contiguous SF | 932 |
| Max Contiguous SF | 9,228 |
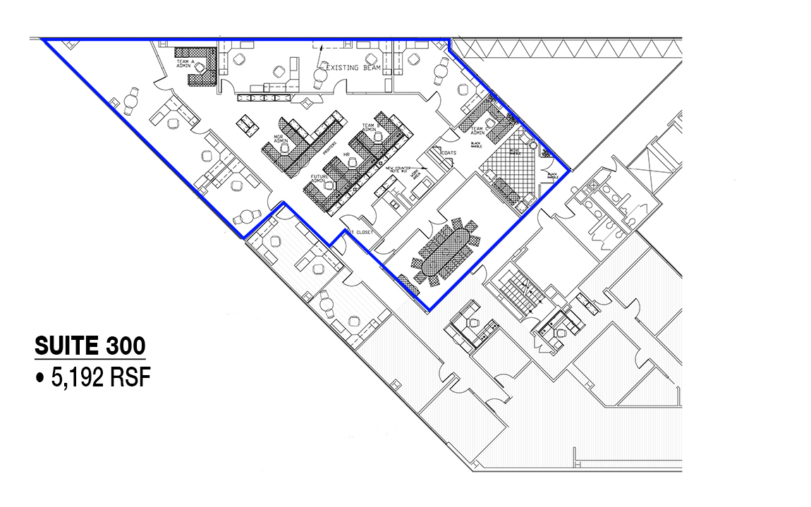
| Additional information | Available Suites • Suite 300 – 5,192 RSF • Suite 302 – 2,236 RSF • Suite 400 - 1,526 RSF • Suite 410 – 1,709 RSF • Suite 414 – 932 RSF • Suites 410 & 414 – 2,641 RSF (combined) • Suite 500 – 958–9,228 RSF (divisible) |
| Total SF in Building | 70,854 |
| Year Constructed | 1977 |
| Elevator | Yes (with badge access) |
| Elevator Capacity | 3,000 lbs |
| Number of Floors | Seven |
| Sprinklers | Yes |
| HVAC | Electric - each floor has a separate handler and suites have a thermostat which can be adjusted (within a set range). |
| Ceiling Type | Varies throughout; mostly 2x4 acoustic tile |
| Ceiling Height | 9' |
| Floor Type | Varies throughout; mostly carpet and tile |
| Basement | Yes; not for Tenant's use |
| Restroom | One per floor; in-common (with badge access) |
| Roof | Rubber |
| Walls | Varies throughout; mostly painted drywall and wallpaper |
| Lighting | Varies throughout; mostly fluorescent |
Leasing Information
| Price Per SF | $19.95 |
| Price Notes Leasing | Rent is gross + in-suite janitorial |
| Monthly | Varies on amount of space leased |
| Annually | Varies on amount of space leased |
| Rentable Useable | Rentable |
| Real Estate Taxes | Included in the rent |
| Operating Expenses | Included in the rent |
| Insurance | Included in the rent |
| Finish Allowance | Negotiable |
| Lease Term | 3+ years |
| Options | Negotiable |
| Escalation | 3% annual increases |
| Possession | At lease commencement |
| Building Hours | Unlimited |
| Security Deposit | Amount equal to first months' rent |
| CAM | Included in the rent |
| Additional Leasing Information | Furniture in the suites can stay, if desired by Tenant. Several large conference rooms can be reserved for Tenant's use. |
Utilities And Services
(T= By Tenant, L= By Landlord)| Heat | L | Trash Removal | L |
| Insurance | L | Air Conditioning | L |
| HVAC Repairs | L | Interior Repairs | L |
| Water and Sewer | L | Supplies | T |
| Taxes | L | Electric | L |
| Janitorial | T | Structural Repairs | L |
| Parking Lot Maintenance | L | Plumbing Repairs | L |
| Roof Repairs | L | Other | Comcast and Verizon service is available (tenant cost). |
Land Information
| Acres | 0.50 Acres |
| Land SF | 21,780 |
| Fencing | None |
| Frontage | Approximately 105' along Locust Street |
| Parking | No on-site parking. Locust Street garage is a 1 minute walk from the building. |
| Topography | Generally level |
| Historic District | National Historic District |
| Flood Zone | No |
| Tax Parcel Number | 04-021-001 |
Utilities
| Water | Public |
| Sewer | Public |
Location
Photos (16)
Plans (9)
Information concerning this offering is from sources deemed reliable, but no warranty is made as to the accuracy thereof, and it is submitted subject to errors, omissions, change of price or other conditions, prior sale or lease, or withdrawal without notice. All sizes approximate.
NAI CIR | 1015 Mumma Road, Lemoyne, PA 17043 | PA License #RB024320A