CLOSE X
• • • • • • • SEARCH
SHARE THIS LISTING

2151 Linglestown Road, Suite 200
Harrisburg, PA 17110

Dauphin County, Susquehanna Township

Located on the second floor of a well-maintained building shared with established office users and medical practitioners. This Harrisburg Office Condo is ideal for healthcare, wellness, or office users seeking a professional setting with strong visibility and access. The layout is designed for flexibility and functionality and can be modified to the end user's needs. The suite benefits from elevator access, abundant natural light, and efficient layout potential. With a professional atmosphere and strong co-tenancy, this is an outstanding space for practices looking to establish or expand their presence in a premier location.

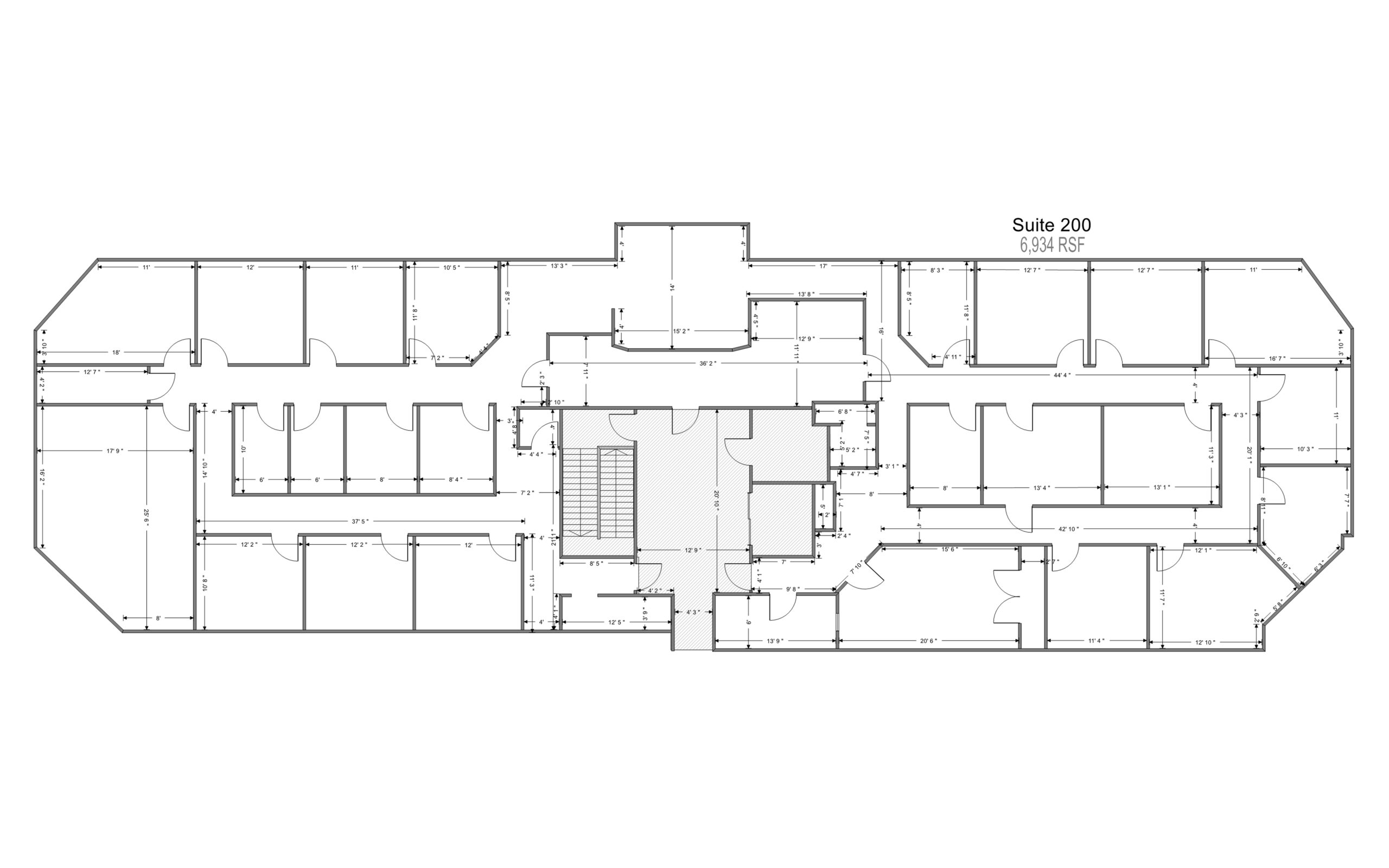
Square Feet Available 6,934 SF
Lot Size 3.16+/- total
Date Available Immediately
Price $515,000

Zoning

Business Office Residential (BOR) which permits administrative & support services, banks and financial institutions, finance and insurance offices, home health care services, information services & data processing, physicians, dentists & other health practitioners, professional, scientific & technical services & offices, medical & diagnostic laboratories, real estate offices, social assistance offices…

Building Information

SF Available 6,934
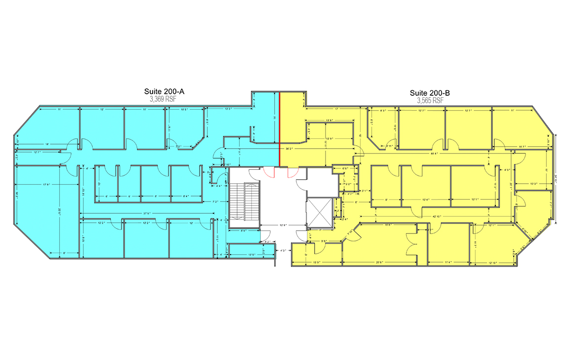
Min Contiguous SF 1,500
Max Contiguous SF 6,934
Additional information Suite 200 was expanded over the years to a total of 6,934+/- RSF and could be demised into two or more suites.
Total SF in Building 30,000
Construction Brick and vinyl siding
Year Constructed 1989
Elevator Yes
Elevator Capacity 2500 lbs
Number of Floors Three (this suite is on the second floor)
Sprinklers None
HVAC Electric air and heat
Ceiling Type 2x4 second look acoustic tiles
Ceiling Height 8'5"
Floor Type Carpet and LVT
Business ID Sign Monument, lobby and door signage
Restroom Yes; in-common and also one interior restroom (with a shower)
Electrical Capacity 225 Amp
Roof Gable roof design, wood frame with composition shingles
Walls Painted drywall
Lighting Canned and fluorescent

Demographics

Radii Population Households Household Income
1 7,528 3,328 $128,699
3 37,943 15,819 $111,936
5 144,690 60,609 $87,574
Traffic Count:

Land Information

Acres 3.16+/- total
Land SF 137,650
Fencing None
Frontage Over 250' along Linglestown Road
Parking 130+ spaces all in-common
Topography Generally level
Historic District No
Flood Zone No
Tax Parcel Number 62-013-127, -128 and -140 (three suites have been combined over time)

Utilities

Water Public
Sewer Public
Gas None

Sales Information

For Sale Yes
For Lease No
Price $515,000
Real Estate Tax Approximately $21,000 annually (2025)
Transfer Tax To be split equally between Buyer and Seller
Expenses Some on file - see listing agent
Insurance Per Buyer's carrier
Inventory Some furniture may be purchased under a separate agreement
Financing Cash or conventional
Date Available Immediately
Additional Information Condominium fee is currently $1,608.08/month and includes water/sewer and common area maintenance items. Also a reserve to pay for roof replacement, when needed.

Location

Photos (7)

Plans (2)

Information concerning this offering is from sources deemed reliable, but no warranty is made as to the accuracy thereof, and it is submitted subject to errors, omissions, change of price or other conditions, prior sale or lease, or withdrawal without notice. All sizes approximate.
NAI CIR | 1015 Mumma Road, Lemoyne, PA 17043 | PA License #RB024320A
X
Information concerning this offering is from sources deemed reliable, but no warranty is made as to the accuracy thereof, and it is submitted subject to errors, omissions, change of price or other conditions, prior sale or lease, or withdrawal without notice.