fbpx
CLOSE X
• • • • • • • SEARCH
SHARE THIS LISTING

3544 N. Progress Avenue
Harrisburg, PA 17110

Dauphin County, Susquehanna Township

Two well-maintained sister office buildings situated on the NW corner of N. Progress Avenue and Paxton Church Road offering exceptional visibility and convenient access to major highways, restaurants, and area amenities. Multiple suites are available in a variety of sizes and configurations to accommodate a range of professional or medical users. Some suites have been recently updated with new carpet, fresh paint, and modern lighting—providing a clean, move-in ready environment for immediate occupancy.

Square Feet Available 8,056 SF
Lot Size 1.44+/- AC
Date Available Immediately
Price $14.25 / SF

Zoning

Business Office Residential (BOR) district which permits office uses such as administrative and support services, banks and financial institutions, finance and insurance offices, home health care services, offices of physicians, dentists and other health practitioners, medical and diagnostic laboratories, social assistance offices and more.

Building Information

SF Available 8,056
Min Contiguous SF 1,361
Max Contiguous SF 2,967
Additional information • Suite 101 - 1,668 RSF
• Suite 104 - 1,361 RSF
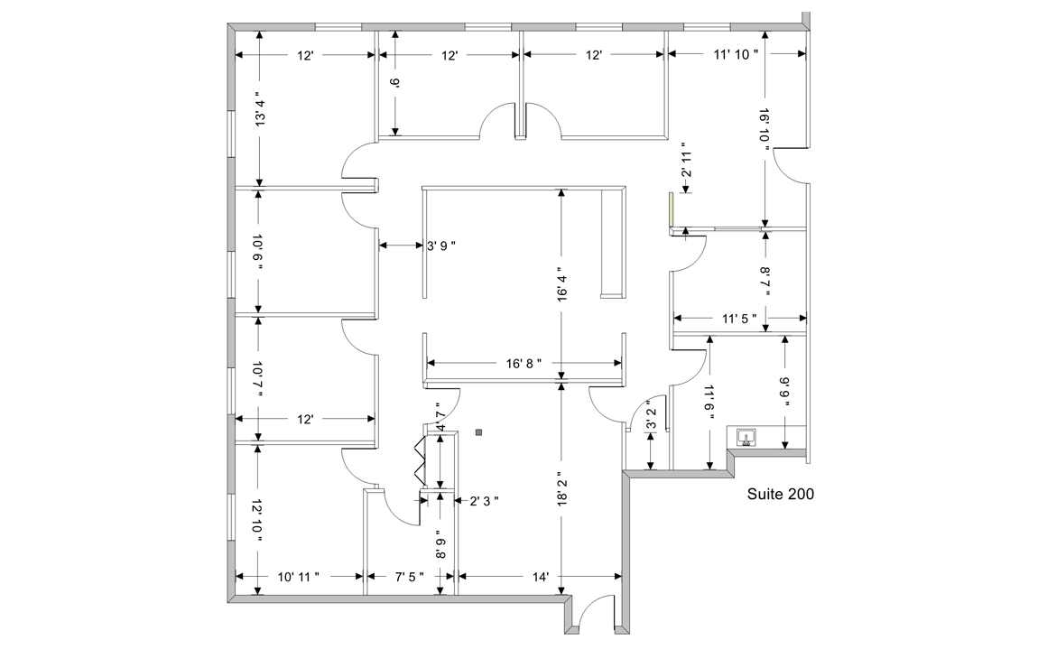
• Suite 200 - 2,967 RSF
• Suite 205 - 2,060 RSF
Total SF in Building 22,472
Construction Brick
Year Constructed 1980
Elevator None
Number of Floors Two
Sprinklers None
HVAC Gas heat and electric A/C (each suite has their own thermostat)
Ceiling Type Acoustic tile
Ceiling Height 8'9"
Floor Type Carpet and tile
Business ID Sign Monument, directory and door signage available
Basement None
Restroom All in-common (key accessible)
Roof Flat rubber
Walls Drywall
Lighting LED

Leasing Information

Price Per SF $14.25
Price Notes Leasing Rent is gross + in-suite janitorial
Monthly Varies on amount of space leased
Annually Varies on amount of space leased
Rentable Useable Rentable
Real Estate Taxes Included in the rent
Operating Expenses Included in the rent
Insurance Building insurance paid by Landlord. Liability insurance paid by Tenant.
Finish Allowance Negotiable
Lease Term 3+ years
Options Negotiable
Escalation 3% annual increases
Possession At lease commencement
Building Hours Unlimited
Security Deposit Amount equal to first months' rent
CAM Included in the rent

Utilities And Services

(T= By Tenant, L= By Landlord)
Heat LTrash Removal L
Insurance LAir Conditioning L
HVAC Repairs LWater and Sewer L
Taxes LElectric L
Janitorial *Structural Repairs L
Parking Lot Maintenance LLight Bulbs L
Plumbing Repairs LRoof Repairs L
Other Comcast and Verizon service is available (tenant cost).
* = T (in-suite)

Land Information

Acres 1.44+/- AC
Land SF 62,726
Fencing None
Frontage Over 300' along N. Progress Ave
Parking 55+/- lined spaces; all in-common
Topography Generally level
Historic District No
Flood Zone No
Tax Parcel Number 62-021-106

Utilities

Water Public
Sewer Public
Gas Yes

Location

Photos (5)

Plans (4)

Information concerning this offering is from sources deemed reliable, but no warranty is made as to the accuracy thereof, and it is submitted subject to errors, omissions, change of price or other conditions, prior sale or lease, or withdrawal without notice. All sizes approximate.
NAI CIR | 1015 Mumma Road, Lemoyne, PA 17043 | PA License #RB024320A
X
Information concerning this offering is from sources deemed reliable, but no warranty is made as to the accuracy thereof, and it is submitted subject to errors, omissions, change of price or other conditions, prior sale or lease, or withdrawal without notice.