CLOSE X
• • • • • • • SEARCH
SHARE THIS LISTING

4107 Linglestown Road
Harrisburg, PA 17112

Dauphin County, Lower Paxton Township

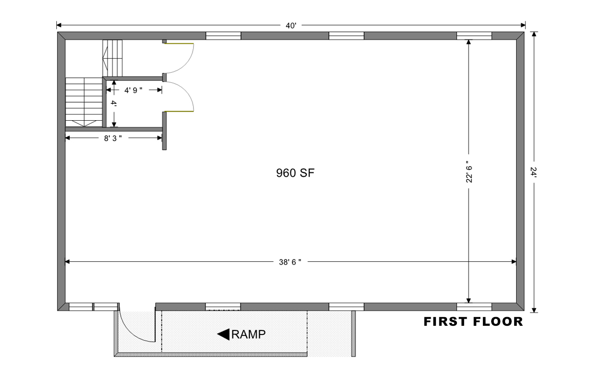
Rare opportunity to own a 1,920 SF commercial building in the prime Linglestown Road corridor. This unique property has been fully gutted and is ready for your vision to bring it back to life. With a partially-open floor plan on both the main and lower levels, the space offers incredible flexibility for a variety of uses—whether you're considering office, commercial, or a mixed-use concept. Situated on nearly an acre of land, the lot provides ample room for expansion, parking, or outdoor enhancements. The parcel is a rare find in this highly desirable and high-visibility location. Bring your imagination and elbow grease—this is the perfect blank canvas for investors, entrepreneurs, or anyone looking to create something truly custom in a prime area.

Square Feet Available 1,920 SF
Lot Size 0.92 AC
Date Available Immediately
Price $324,000

Zoning

Business Campus (BC) which permits animal grooming facilities, medical clinics, medical offices, business professional offices, personal services, retail store and more.

Building Information

SF Available 1,920
Additional information 960+/- SF on the main floor and 960+/- SF on the exposed lower level
Construction Brick
Year Constructed 1970
Elevator None
Number of Floors Two (lower level is exposed)
Sprinklers None
HVAC Electric heat and A/C
Ceiling Type Currently exposed and ready to be finished
Ceiling Height 7'+/-
Floor Type Ready to be finished
Business ID Sign Along Linglestown Road
Basement Exposed lower level
Restroom Rough-in's on both levels (full bathroom rough-in on the lower level)
Electrical Capacity Two 100 Amp boxes
Roof Shingle (installed in 2022)
Walls Drywall and some areas are exposed
Lighting TBD

Demographics

Radii Population Households Household Income
0.25 341 124 $165,673
0.5 1,351 492 $166,633
1.0 5,418 2,114 $152,275
Traffic Count:

Land Information

Acres 0.92 AC
Land SF 40,000
Fencing None
Frontage Approximately 100' along Linglestown Road
Parking 10+/- in the front of the building (there is a driveway that continues behind the property which could be utilized)
Topography Generally level
Flood Zone No
Tax Parcel Number 35-011-073

Utilities

Water Public
Sewer Public
Gas Yes; gas service has been installed at the property

Sales Information

For Sale Yes
For Lease No
Price $324,000
Real Estate Tax Approximately $3,525 annually (2026)
Transfer Tax To be split equally between Buyer and Seller
Expenses Some on file - see listing agent
Insurance Per Buyer's carrier
Inventory None
Financing Cash or conventional
Date Available Immediately

Location

Photos (5)

Plans (2)

Information concerning this offering is from sources deemed reliable, but no warranty is made as to the accuracy thereof, and it is submitted subject to errors, omissions, change of price or other conditions, prior sale or lease, or withdrawal without notice. All sizes approximate.
NAI CIR | 1015 Mumma Road, Lemoyne, PA 17043 | PA License #RB024320A
X
Information concerning this offering is from sources deemed reliable, but no warranty is made as to the accuracy thereof, and it is submitted subject to errors, omissions, change of price or other conditions, prior sale or lease, or withdrawal without notice.