
601 Old York Road
Etters, PA 17319
York County, Fairview Township
This unique investment offering includes two well-maintained commercial buildings situated on a single parcel in the heart of Etters. The property features two long-established tenants – a popular pizza & sub shop and a beer & soda distributor, both of which have been in successful operation for many years. With stable, long-term occupancy and pride of ownership evident throughout, this property provides an investor with steady income and strong local visibility in a well-traveled corridor. Ideal for those seeking a turnkey, income-producing asset with reliable tenants and minimal management requirements.
| Square Feet Available | 8,200 SF |
| Lot Size | 1.09 (two parcels total) |
| Date Available | Immediately |
| Price | $1,800,000 |
Zoning
Commercial Business Zoning District (CB) which permits animal hospital, automobile rental/sales, repair/service and/or fuel/gas sales, bank, beer distribution, commercial recreation, c-store, food service, mini-storage warehouse, office/medical, personal service, restaurant, retail business and more.
Building Information
| SF Available | 8,200 |
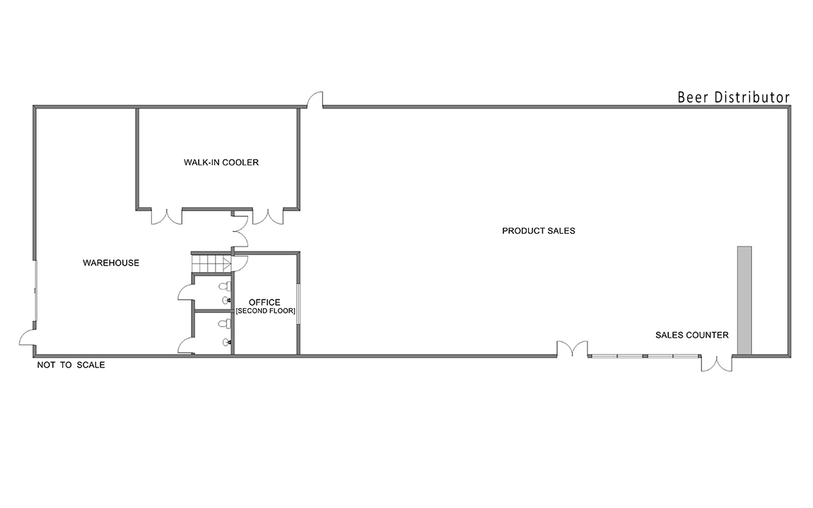
| Additional information | Pizza shop: 1,200+/- SF | Beer distributor: 7,000+/- SF |
| Total SF in Building | 8,200 |
| Construction | Brick and concrete block |
| Year Constructed | Pizza shop: 1989 | Beer distributor: 1986 |
| Elevator | None |
| Number of Floors | One |
| Sprinklers | None |
| HVAC | Pizza shop: gas heat and central A/C | Beer distributor: gas hung heaters |
| Ceiling Type | Pizza shop: 2x4 acoustic tiles | Beer distributor: drywall |
| Floor Type | Pizza shop: tile | Beer distributor: concrete |
| Business ID Sign | Pizza shop: pole sign | Beer distributor: building signage |
| Basement | None |
| Restroom | Pizza shop: two | Beer distributor: two |
| Electrical Capacity | Pizza shop: 200 Amp; 3-phase | Beer distributor: 200 Amp |
| Roof | Both roofs were replaced about 8 years ago |
| Walls | Pizza shop: brick and plaster | Beer distributor: bock |
| Lighting | Pizza shop: fluorescent | Beer distributor: LED |
Land Information
| Acres | 1.09 (two parcels total) |
| Total Acres Available | 1.09+/- AC |
| Land SF | 47,480 |
| Fencing | None |
| Frontage | Over 200' along Old York Road and 130' along Wyndamere Road (corner location) |
| Parking | 35+/- lined spaces, all in-common |
| Topography | Generally level |
| Flood Zone | Yes; rear of property is located in the 100 year floodplain |
| Tax Parcel Number | 27-000-23-0230 and -0245 |
Utilities
| Water | Public |
| Sewer | Public |
| Gas | Yes (UGI) |
Sales Information
| For Sale | Yes |
| For Lease | No |
| Price | $1,800,000 |
| Real Estate Tax | Approximately $12,460 annually (2025) (reimbursed by Tenants) |
| Transfer Tax | To be split equally between Buyer and Seller |
| Insurance | Per Buyer's carrier |
| Financing | Cash or conventional |
| Date Available | Immediately |
| Additional Information | Lease abstracts available for review with signed confidentiality agreement. See listing agent for more details. |